
MUR TIROIR, restructuration et aménagement intérieur d'une maison individuelle à Marcq en Baroeul
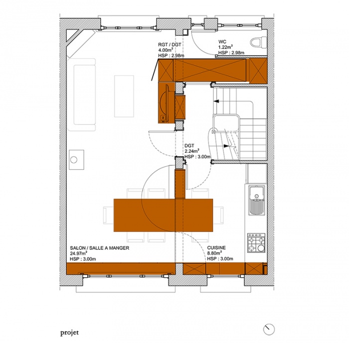
Marcq-en-Baroeul - 59Le projet a pour ambition la recomposition du premier étage du logement permettant d’agrandir et d’optimiser l’espace principal de vie, d’organiser et de qualifier les rapports entre les différents usages pour une fonctionnalité, un confort, une clarté et une impression de grandeur amplifiés.
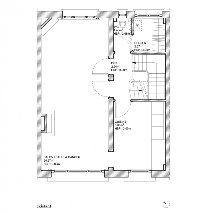
Le premier étage existant est divisé en deux parties : un espace traversant et ouvert actuellement utilisé en salon/salle à manger, et un espace cloisonné en petites pièces avec une distribution centrale permettant de concentrer les accès sur le palier.
L’ouverture du mur de séparation entre salon/salle à manger et «pièces de service» crée des porosités qui permettent de lier les surfaces des différentes pièces en conservant le palier et donc la séparation visuelle et sonore avec l’escalier, et de révéler et d’utiliser la largeur de la maison en conservant la profondeur.
L’aménagement de trois meubles à cheval entre pièce principale et petites pièces permet d’intégrer au logement :
- les rangements (bibliothèque, vaisselier, vide-poche, cagibi, stockage);
- les espaces télé et ordinateur;
- la table de la cuisine et de la salle à manger.
Le positionnement des meubles permet non seulement l’accroche entre les espaces et les usages mais aussi leur mutualisation et leur concentration pour dégager un maximum d’espace libre.
Les trois meubles créent trois jonctions entre les différentes pièces :
- la partie 1, séquencée entre salon, dégagement et WC;
- la partie 2, recto-verso entre salon et palier;
- les meubles 3 et 4, visuellement continus entre salle à manger et cuisine.
L’accès permet de desservir immédiatement à gauche la salle à manger et à droite le salon et les sanitaires.
La concentration des meubles rentabilise les espaces de rangement. Leur utilisation mutualisée ainsi que leur mobilité entre pièce principale et «pièces de service» permet de grouper les usages :
- le meuble mobile, continu entre salon, palier, dégagement et sanitaires, offre en position standard un espace télé et ordinateur/bureau côté salon, un vide poche et éventuellement un cagibi sur le palier, des rangements dans le dégagement et les WC; il peut se déplacer afin d’accéder aux zones de stockage rentabilisant les espaces de service côté jardin ;
- la table mobile, continue entre les deux pièces, glisse vers la cuisine pour constituer table de repas pour 3 ou plan de travail en conservant un petit espace de bureau côté salle à manger ou se tire complétement vers celle-ci pour offrir une table de réception pour 8 convives (possibilité de positions intermédiaires avec table de 4 ou 6 dans la salle et plan de travail côté cuisine);
- le meuble en façade sur rue se transforme en bibliothèque, rangement des jouets, vaisselier, rangement de cuisine, plan de travail, … en fonction des besoins.
-
-
Cuisine ouverte sur la salle à manger et le salon
-
Cuisine ouverte, table de 4 personnes dans la salle à manger
-
Cuisine fermée et table coulissante déployée
-
meuble TV
-
Cuisine fermée et table coulissante déployée pour 8 convives
-
Le meuble "vide poche" depuis le palier s'intègre à la baie existante
-
vide poche et rangement sur le palier
-
Plan R+1 existant
-
Plan R+1 projet
Harmonie entre existant et mobilier en OSB