
FENÊTRE SUR JARDIN, Réhabilitation et extension d'une maison de ville, aménagement d'une terrasse et des espaces extérieurs à Marcq en Baroeul
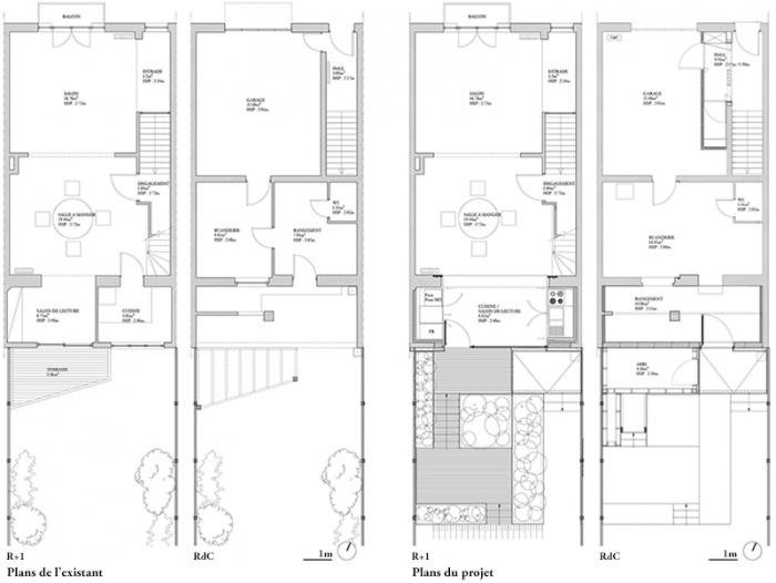
Marcq-en-Baroeul - 59Le projet investit l’arrière de la maison bel-étage existante pour qualifier et amplifier les relations entre salon/salle à manger au premier étage et jardin en rez-de-chaussée.
Au premier étage, le rapport entre intérieur et extérieur est amplifié par la démolition partielle du mur porteur séparant maison originelle et extension existante et de la façade arrière qui crée une large ouverture visuelle auparavant réduite à un tiers de la largeur de la parcelle.
Le décloisonnement de l’ancienne cuisine permet ainsi de profiter de beaucoup plus d’éclairage naturel dans la pièce principale et d’une vue plus frontale sur le jardin qui apparaît donc comme plus proche. L’électroménager et les plans de travail sont réintégrés le long des murs mitoyens dans l’épaisseur des murs de refend dans une logique de cuisine masquée derrière des grandes portes de placard pivotantes et rentrantes pour accentuer la sensation d’un salon et d’une salle à manger agrandis et prolongés vers l’extérieur, en cohérence avec l’uniformisation du sol en parquet réalisé sur ce niveau.
Cette ouverture visuelle s’accompagne d’une ouverture physique avec l’aménagement d’une terrasse en gradin offrant un accès depuis le premier étage au jardin qui était uniquement praticable en passant par le garage.
Cette terrasse en bois, qui s’inscrit dans la continuité de la reprise de la façade arrière, est ponctuée par de grandes jardinières qui forment garde-corps, réduisent les vis-à-vis et constituent, en mélange aux éléments en mélèze, une véritable progression de l’intérieur vers l’extérieur. Les deux niveaux de terrasse proposent un balcon haut pour lire et une terrasse intermédiaire pour manger en surplomb du jardin.
Au rez-de-chaussée, les espaces périphériques au garage ont été restructurés. La buanderie en façade arrière profite d’un espace décloisonné et ainsi éclairé en second jour via un espace de bureau réinvestissant la sous-face de l’extension pré-existante. Cet espace est ainsi fermé en alignement de la nouvelle cuisine pour une façade sans redent entre rez-de-chaussée et R+1. Une porte permet, depuis ce bureau, d’accéder au jardin et à une pièce de stockage de jardin optimisant le volume vide sous la terrasse haute.
L’entrée a également été aménagée et élargie pour plus de confort d’usage avec la création d’une grande niche donnant des accès masqués au garage, à un espace de stockage pouvant devenir WC, à une penderie et à un rangement pour chaussures et vide-poche. La cour avant, entre domaine public et bâti, annonce les nouvelles interventions et modifie l’image de la maison depuis la rue avec le remplacement de la surface en gravillons par un dallage simple de pierre bleue en dialogue avec le dessin de la façade.
-
-
Façade arrière avant travaux
-
Réaménagement intérieur et ouverture sur le jardin
-
intérieur avant travaux
-
-
-
-
-
-
-
Réaménagement de l'entrée : derrière les panneaux stratifiés, on retrouve des rangements, l'accès au garage, etc.
-
La terrasse en gradins permettant la jonction entre le niveau des pièces de vie et le jardin.